918 Westwood Street Coquitlam, British Columbia V3C 3L3

$938,000

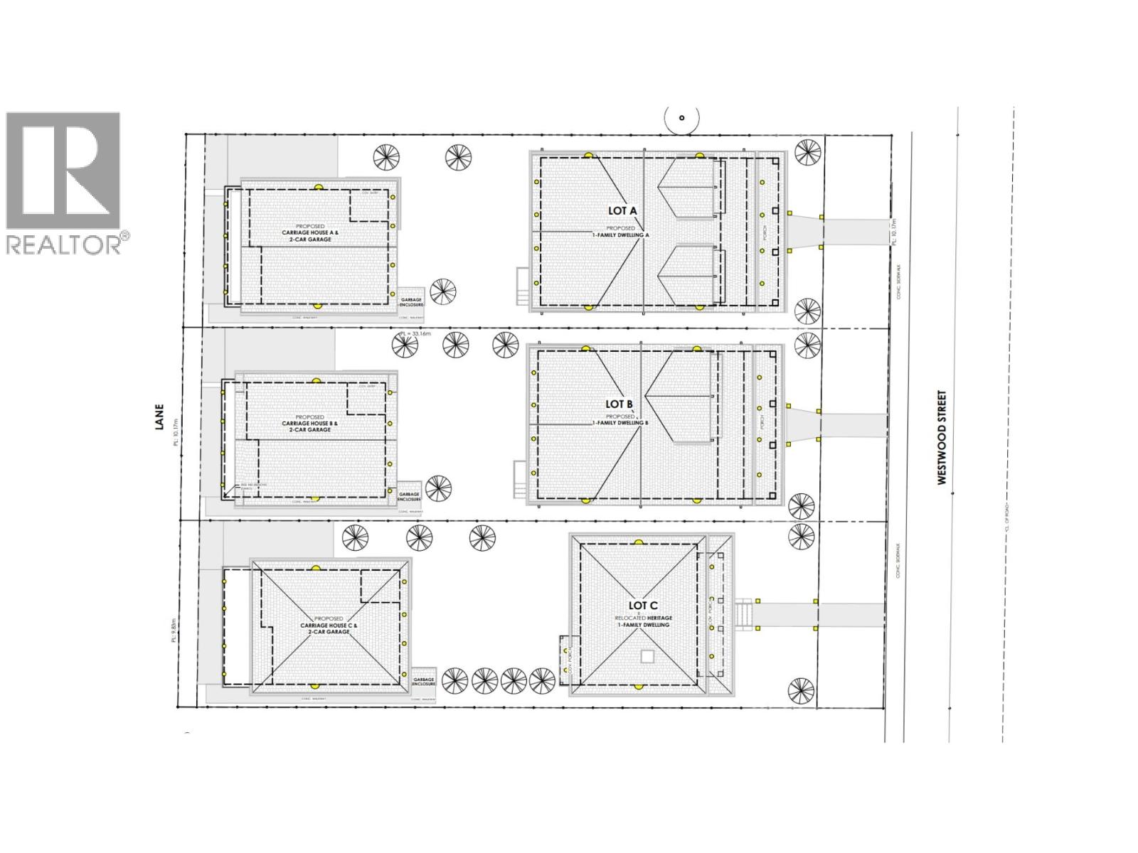
Exceptional development opportunity in a prime Coquitlam location! This large property has been subdivided into three lots - 910, 914, and 918 Westwood Street - with drawings complete and building permits in progress. Ideal for builders or investors seeking a ready-to-go project in a growing neighbourhood. Offering a rare chance to secure a multi-lot development site with excellent future potential. City allows development for approx 3,100sf of living space, including a 1 bedroom couch house and 2 bedroom basement suite for lot 918. (id:58426)

Property Details

MLS® Number R3061467
Property Type Vacant Land
Neigbourhood Ranch Park

Building

Land

Acreage No
Size Irregular 4067.9
Size Total 4067.9 Sqft
Size Total Text 4067.9 Sqft

https://www.realtor.ca/real-estate/29026247/918-westwood-street-coquitlam

Contact Us

Contact us for more information

Generating Captcha

Sina Almasi
Personal Real Estate Corporation, The GEMME Team

(604) 440-5444
www.almasi.ca/

Oakwyn Realty Ltd.
3195 Oak Street
Vancouver, British Columbia V6H 2L2

(604) 620-6788
(604) 620-7970
www.oakwyn.com/