914 Westwood Street Coquitlam, British Columbia V3C 3L3

$938,000

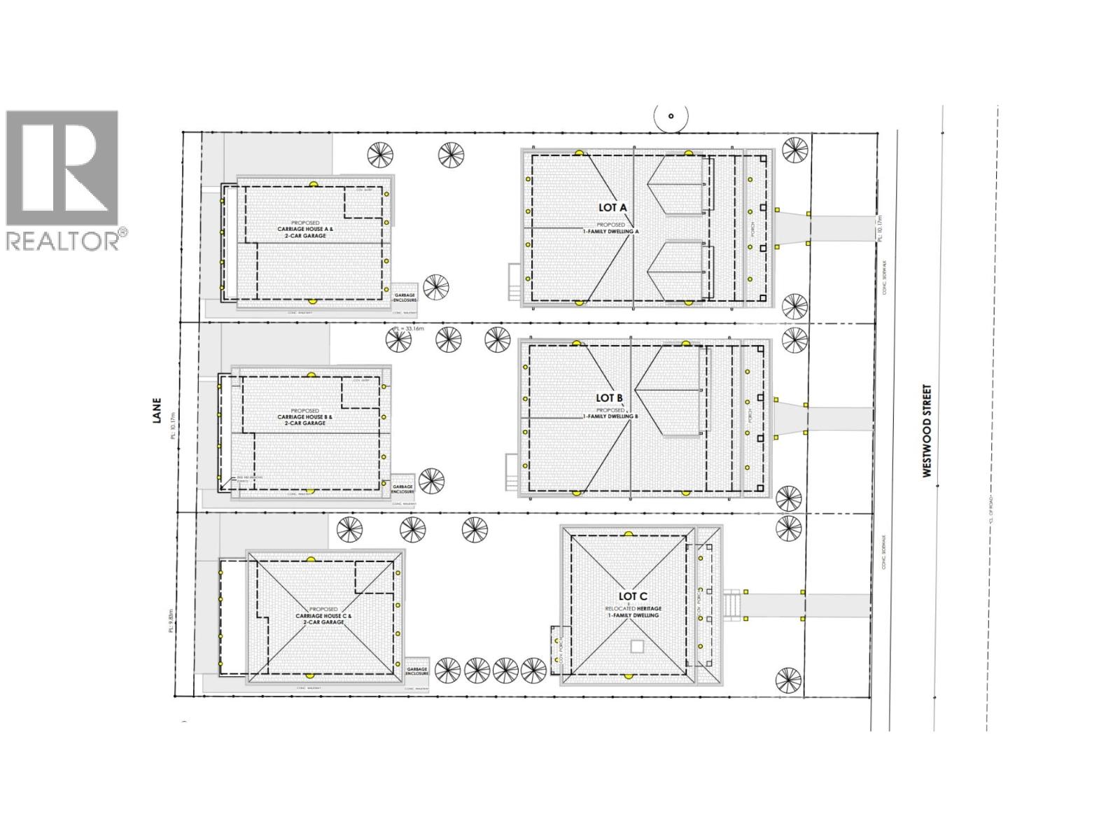
Exceptional development opportunity in a prime Coquitlam location! This large property has been subdivided into three lots - 910, 914, and 918 Westwood Street - with drawings complete and building permits in progress. Ideal for builders or investors seeking a ready-to-go project in a growing neighbourhood. Offering a rare chance to secure a multi-lot development site with excellent future potential. City allows development for approx 3,100sf of living space, including a 1 bedroom couch house and 2 bedroom basement suite for lot 914. (id:58426)

Property Details

MLS® Number R3061460
Property Type Vacant Land
Neigbourhood Ranch Park
Amenities Near By Recreation, Shopping
Features Central Location

Building

Land

Acreage No
Land Amenities Recreation, Shopping
Size Irregular 4067.9
Size Total 4067.9 Sqft
Size Total Text 4067.9 Sqft

https://www.realtor.ca/real-estate/29026246/914-westwood-street-coquitlam

Contact Us

Contact us for more information

Generating Captcha

Sina Almasi
Personal Real Estate Corporation, The GEMME Team

(604) 440-5444
www.almasi.ca/

Oakwyn Realty Ltd.
3195 Oak Street
Vancouver, British Columbia V6H 2L2

(604) 620-6788
(604) 620-7970
www.oakwyn.com/