Welcome to the heart of Sardis! This beautifully fully renovated home offers 5 bedrooms and 3 bathrooms, perfect for growing families. Step inside to an open concept floor plan filled with natural light and modern finishes throughout, creating a warm and inviting space to call home. Truly move-in ready, there's nothing to do but settle in and start making memories. Located in a family-friendly neighborhood, you're close to all levels of schools, parks, shopping, and everyday amenities. Plus, enjoy quick and easy access to Highway 1 in under 7 minutes. A perfect place to watch your family thrive, don't miss this one! * PREC - Personal Real Estate Corporation (id:58426)
12:00 pm
Ends at:1:30 pm
12:00 pm
Ends at:1:30 pm
| MLS® Number | R3105965 |
| Property Type | Single Family |
| View Type | Mountain View, Valley View, View (panoramic) |
| Bathroom Total | 3 |
| Bedrooms Total | 5 |
| Appliances | Washer, Dryer, Refrigerator, Stove, Dishwasher |
| Basement Development | Finished |
| Basement Type | Full (finished) |
| Constructed Date | 1983 |
| Construction Style Attachment | Detached |
| Construction Style Split Level | Split Level |
| Cooling Type | Central Air Conditioning |
| Fireplace Present | Yes |
| Fireplace Total | 2 |
| Heating Fuel | Natural Gas |
| Heating Type | Forced Air |
| Stories Total | 3 |
| Size Interior | 2,300 Sqft |
| Type | House |
| Garage | 2 |
| R V |
| Acreage | No |
| Size Depth | 154 Ft |
| Size Frontage | 36 Ft |
| Size Irregular | 7449 |
| Size Total | 7449 Sqft |
| Size Total Text | 7449 Sqft |
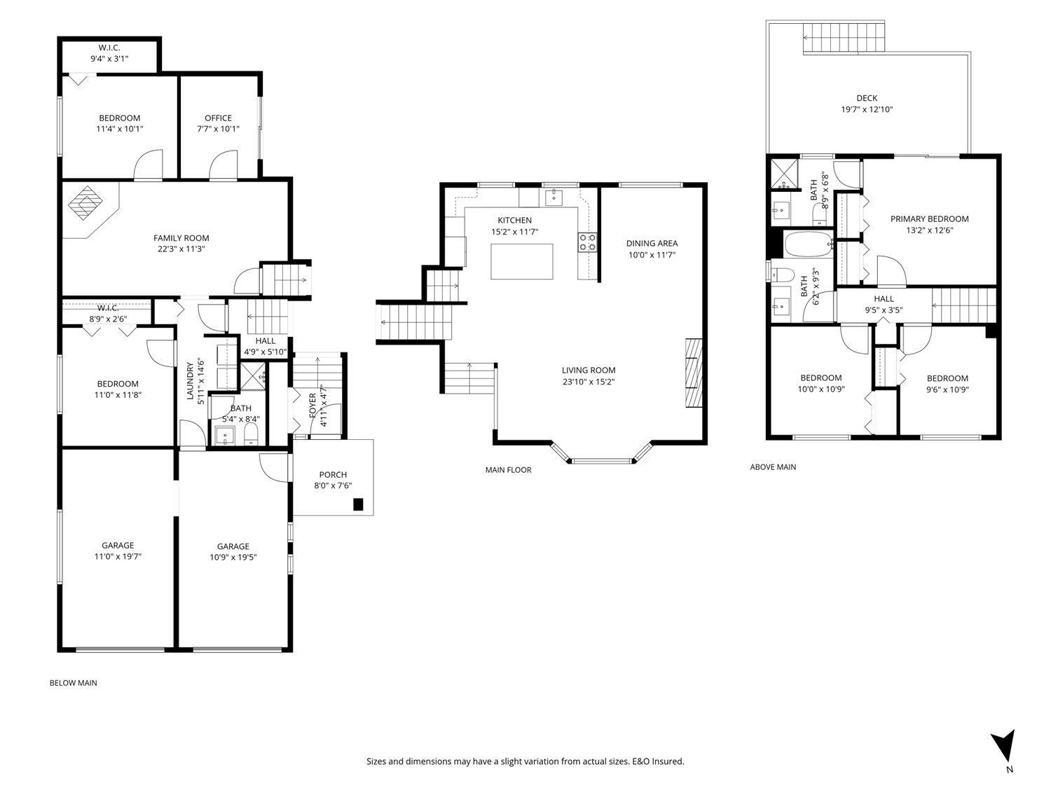
| Level | Type | Length | Width | Dimensions |
|---|---|---|---|---|
| Above | Primary Bedroom | 13 ft ,2 in | 12 ft ,6 in | 13 ft ,2 in x 12 ft ,6 in |
| Above | Bedroom 2 | 9 ft ,6 in | 10 ft ,9 in | 9 ft ,6 in x 10 ft ,9 in |
| Above | Bedroom 3 | 10 ft | 10 ft ,9 in | 10 ft x 10 ft ,9 in |
| Lower Level | Bedroom 4 | 11 ft ,4 in | 10 ft ,1 in | 11 ft ,4 in x 10 ft ,1 in |
| Lower Level | Other | 9 ft ,4 in | 3 ft ,1 in | 9 ft ,4 in x 3 ft ,1 in |
| Lower Level | Bedroom 5 | 11 ft | 11 ft ,8 in | 11 ft x 11 ft ,8 in |
| Lower Level | Other | 8 ft ,9 in | 2 ft ,6 in | 8 ft ,9 in x 2 ft ,6 in |
| Lower Level | Office | 7 ft ,7 in | 10 ft ,1 in | 7 ft ,7 in x 10 ft ,1 in |
| Lower Level | Family Room | 22 ft ,3 in | 11 ft ,3 in | 22 ft ,3 in x 11 ft ,3 in |
| Lower Level | Laundry Room | Measurements not available | ||
| Main Level | Foyer | 4 ft ,11 in | 4 ft ,7 in | 4 ft ,11 in x 4 ft ,7 in |
| Main Level | Kitchen | 15 ft ,2 in | 11 ft ,7 in | 15 ft ,2 in x 11 ft ,7 in |
| Main Level | Living Room | 23 ft ,10 in | 15 ft ,2 in | 23 ft ,10 in x 15 ft ,2 in |
| Main Level | Dining Room | 10 ft | 11 ft ,7 in | 10 ft x 11 ft ,7 in |
https://www.realtor.ca/real-estate/29547386/6425-swanson-street-sardis-south-chilliwack
Contact us for more information
Jason Sandhu
PREC - Jason Sandhu & Associates
(604) 398-8871
(604) 398-8891
www.pathwayexecutives.com/