562 Lillooet Avenue, Harrison Hot Springs Harrison Hot Springs, British Columbia V0M 1K0

3 Bedroom 2 Bathroom 1,395 sqft
Fireplace Forced Air

$799,000

Incredible opportunity to own this beautifully renovated home on a .25-acre fully fenced lot just steps from Harrison Lake. Lifestyle, functionality, and investment appeal all in one! Highlights include a 24'x26' detached shop, large covered sundeck for year-round entertaining, RV carport plus extra parking for toys, trailers, or guests, RV hookups, and a garden area for homegrown produce or landscaping. The yard is fully fenced for security and privacy, perfect for kids and pets. Inside, extensive renovations throughout give the home a fresh modern feel. Located in one of Harrison's most desirable areas, you're only a short stroll to the lake, beaches, shops, and restaurants. Whether you're seeking a recreational escape, a family home, or a smart investment, this property truly has it all * PREC - Personal Real Estate Corporation (id:58426)

Property Details

MLS® Number R3049039
Property Type Single Family
Storage Type Storage

Building

Bathroom Total 2
Bedrooms Total 3
Basement Type Crawl Space
Constructed Date 9999
Construction Style Attachment Detached
Fireplace Present Yes
Fireplace Total 1
Heating Fuel Electric, Natural Gas
Heating Type Forced Air
Stories Total 2
Size Interior 1,395 Sqft
Type House

Parking

Open
R V

Land

Acreage No
Size Depth 229 Ft ,8 In
Size Frontage 66 Ft ,6 In
Size Irregular 0.25
Size Total 0.25 Ac
Size Total Text 0.25 Ac

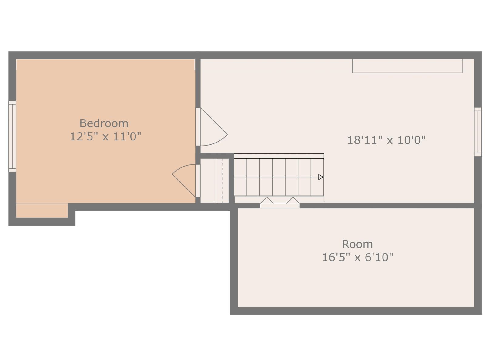
Rooms

Level Type Dimensions
Above Bedroom 4 12 ft ,5 in x 11 ft
Above Flex Space 17 ft x 16 ft
Main Level Kitchen 18 ft ,6 in x 12 ft ,6 in
Main Level Living Room 15 ft ,2 in x 12 ft ,7 in
Main Level Bedroom 2 10 ft ,6 in x 10 ft
Main Level Bedroom 3 10 ft ,4 in x 9 ft
Main Level Utility Room 4 ft ,6 in x 3 ft ,10 in
Main Level Foyer 5 ft x 6 ft ,10 in

https://www.realtor.ca/real-estate/28876908/562-lillooet-avenue-harrison-hot-springs-harrison-hot-springs

Contact Us

Contact us for more information

Generating Captcha

Norm Daher
Personal Real Estate Corporation

(604) 795-1960
(604) 858-7197
www.normdaher.com/

RE/MAX Nyda Realty Inc.
1 - 7300 Vedder Rd
Chilliwack, British Columbia V2R 4G6

(604) 858-7179
(800) 830-7175
(604) 858-7197
www.nydarealty.britishcolumbia.remax.ca